Ada Restroom Dimensions

Designing a restroom that is both functional and comfortable requires careful consideration of various factors, including the dimensions of the space. One of the key aspects to consider is the Ada Restroom Dimensions. These dimensions are crucial for ensuring that the restroom is accessible to individuals with disabilities, complying with the Americans with Disabilities Act (ADA) guidelines. This blog post will delve into the importance of Ada Restroom Dimensions, the specific measurements required, and how to implement them effectively in your design.

Understanding ADA Restroom Dimensions

The ADA guidelines provide specific standards for restroom dimensions to ensure accessibility for people with disabilities. These guidelines cover everything from the size of the restroom to the placement of fixtures and grab bars. Understanding these dimensions is essential for creating a restroom that is both compliant and user-friendly.

Key Components of ADA Restroom Dimensions

When designing a restroom, several key components must adhere to Ada Restroom Dimensions. These include:

  • Door Width
  • Turning Space
  • Clearance Around Fixtures
  • Grab Bars
  • Sink Height and Clearance
  • Toilet Height and Clearance

Door Width

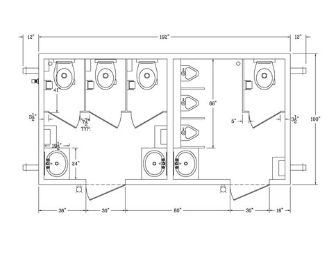
The door width is a critical aspect of Ada Restroom Dimensions. According to ADA guidelines, the minimum clear width of a door should be 32 inches. This width ensures that individuals using wheelchairs or other mobility aids can easily enter and exit the restroom. Additionally, the door should have a minimum of 18 inches of clear space on the latch side to allow for easy opening and closing.

Turning Space

Turning space is another essential component of Ada Restroom Dimensions. The ADA requires a minimum turning space of 60 inches in diameter to allow for a 360-degree turn. This space is crucial for individuals using wheelchairs or other mobility aids to maneuver within the restroom. In smaller restrooms, a T-shaped turning space can be used, which requires a minimum of 60 inches by 60 inches with a 36-inch extension on one side.

Clearance Around Fixtures

Clearance around fixtures is important for ensuring that individuals with disabilities can access and use them comfortably. The ADA guidelines specify that there should be a minimum of 30 inches by 48 inches of clear space in front of each fixture, such as sinks, toilets, and urinals. This clearance allows for easy maneuvering and use of the fixtures.

Grab Bars

Grab bars are essential for providing support and stability for individuals with disabilities. According to Ada Restroom Dimensions, grab bars should be installed at a height of 33 to 36 inches above the finished floor. They should be at least 1.25 inches in diameter and extend a minimum of 12 inches from the wall. Grab bars should be installed on the side and rear walls of toilets and in shower areas to provide adequate support.

Sink Height and Clearance

The height and clearance of sinks are also important considerations in Ada Restroom Dimensions. Sinks should be installed at a height of 34 inches above the finished floor to allow for easy access by individuals using wheelchairs. Additionally, there should be a minimum of 27 inches of clear space below the sink to accommodate wheelchair users. The sink should also have a clear front edge or knee clearance to allow for easy access.

Toilet Height and Clearance

Toilet height and clearance are crucial for ensuring that individuals with disabilities can use the toilet comfortably. According to Ada Restroom Dimensions, toilets should be installed at a height of 17 to 19 inches above the finished floor. There should be a minimum of 18 inches of clear space on the side of the toilet and 24 inches of clear space in front of the toilet to allow for easy transfer from a wheelchair. Additionally, grab bars should be installed on the side and rear walls of the toilet to provide support.

Designing for Accessibility

Designing a restroom that adheres to Ada Restroom Dimensions requires careful planning and attention to detail. Here are some steps to help you design an accessible restroom:

  • Measure the space carefully to ensure that all dimensions comply with ADA guidelines.
  • Plan the layout of the restroom to maximize clear space and turning areas.
  • Choose fixtures and equipment that are ADA compliant and meet the required dimensions.
  • Install grab bars and other support features in the appropriate locations.
  • Test the restroom design with individuals who use mobility aids to ensure it is functional and comfortable.

📝 Note: It is important to consult with a professional who is knowledgeable about ADA guidelines to ensure that your restroom design is compliant and meets all necessary requirements.

Common Mistakes to Avoid

When designing a restroom, there are several common mistakes to avoid to ensure compliance with Ada Restroom Dimensions. These include:

  • Not providing adequate clear space around fixtures.
  • Installing grab bars at the incorrect height or location.
  • Using fixtures that do not meet ADA height requirements.
  • Not providing adequate turning space.
  • Ignoring the need for clear front edges on sinks.

By avoiding these mistakes, you can ensure that your restroom is accessible and compliant with ADA guidelines.

Case Study: Successful Implementation of Ada Restroom Dimensions

To illustrate the successful implementation of Ada Restroom Dimensions, let's consider a case study of a public restroom in a community center. The restroom was designed with the following features:

  • Door width of 36 inches with a clear space of 18 inches on the latch side.
  • Turning space of 60 inches in diameter.
  • Clear space of 30 inches by 48 inches in front of each fixture.
  • Grab bars installed at a height of 34 inches above the finished floor.
  • Sinks installed at a height of 34 inches with a clear front edge and knee clearance.
  • Toilets installed at a height of 18 inches with grab bars on the side and rear walls.

This restroom design was praised for its accessibility and comfort, making it easy for individuals with disabilities to use the facilities. The community center received positive feedback from users, highlighting the importance of adhering to Ada Restroom Dimensions.

Conclusion

Designing a restroom that adheres to Ada Restroom Dimensions is essential for ensuring accessibility and compliance with ADA guidelines. By understanding the key components of Ada Restroom Dimensions and following best practices for design, you can create a restroom that is functional, comfortable, and accessible to all users. Whether you are designing a public restroom, a commercial facility, or a residential space, adhering to these guidelines will help you create a space that meets the needs of individuals with disabilities and promotes inclusivity.

Related Terms:

  • ada restroom requirements
  • ada restroom layout
  • ada restroom dimensions requirements
  • ada bathroom requirements
  • ada restroom stall dimensions
  • ada restroom size chart
Facebook Twitter WA
Ashley
Ashley
Author
Passionate content creator delivering insightful articles on technology, lifestyle, and more. Dedicated to bringing quality content that matters.
You Might Like